Este site utiliza cookies para permitir a mudança de língua e o armazenamento dos seus imóveis favoritos. Ao utilizar este site, concorda que o mesmo utilize cookies.

Moradia T3+1 com 400m2 em Loule a 15 minutos da praia

820.000€




Referência

33/2025

Natureza

Venda

Tipo de Imóvel

Moradia

Subtipo de Imóvel

Moradia em Banda

Tipologia

T3+1

Estado

Excelente

Certificado energético

A

Ano

2025


Distrito

Faro

Concelho

Loulé

Freguesia

Loulé (São Sebastião)

Código Postal

8100


Área Útil

240 m2

Área Bruta

400 m2

Área de Terreno

0 m2



Contactar Imobiliária

*Preenchimento obrigatório
Ao clicar em 'Enviar', declara que aceita a nossa Política de Privacidade.
Moradia T3+1 em Loulé – Onde o conforto encontra a serenidade.
Imagine-se a viver num espaço onde o silêncio do campo se mistura com a brisa suave do Algarve, a poucos minutos das praias douradas da Quinta do Lago e do aeroporto de Faro.
Esta moradia T3+1 com 400m² de construção é muito mais do que uma casa — é um convite para viver com qualidade, equilíbrio e elegância.
Com áreas generosas e uma orientação solar nascente/poente, cada divisão é inundada por luz natural ao longo do dia.
Os espaços abrem-se para varandas panorâmicas e um terraço de 50m², onde pode desfrutar do pôr do sol sobre o campo e a cidade — com a possibilidade de instalar um jacuzzi ou uma pequena piscina privada.
Concebida para o conforto do dia a dia, esta moradia dispõe de bomba de calor, ar condicionado e recuperador de calor a pellets que garantem conforto em todas as estações.
Cozinha moderna equipada com eletrodomésticos Bosch, onde cada detalhe foi pensado para inspirar momentos de partilha.
Sistema de som integrado em toda a casa, perfeito para criar o ambiente ideal em cada ocasião.
Uma sala versátil na cave, preparada para cinema em casa ou ginásio privado, que se adapta ao seu estilo de vida.
Espaço e privacidade com garagem fechada para dois automóveis e ainda dois lugares de estacionamento exteriores privativos.
A zona envolvente é residencial, muito calma e segura, e fica a apenas 10 minutos a pé dos mercados e do centro histórico de Loulé.
Aqui, cada dia começa com luz e termina com tranquilidade.
Se procura uma moradia que combina elegância, conforto e localização privilegiada, agende já a sua visita.


55.
Geral
ClimatizaçãoAr condicionado:Sim
ClimatizaçãoRecuperador:Sim
ClimatizaçãoBomba de calor:Sim
CaixilhariaVidro Duplo:Sim
CaixilhariaEstores:Sim
VistasCampo:Sim
VistasCidade:Sim
VistasJardins:Sim
VistasMar:Sim
Exposição SolarNascente:Sim
Exposição SolarPoente:Sim
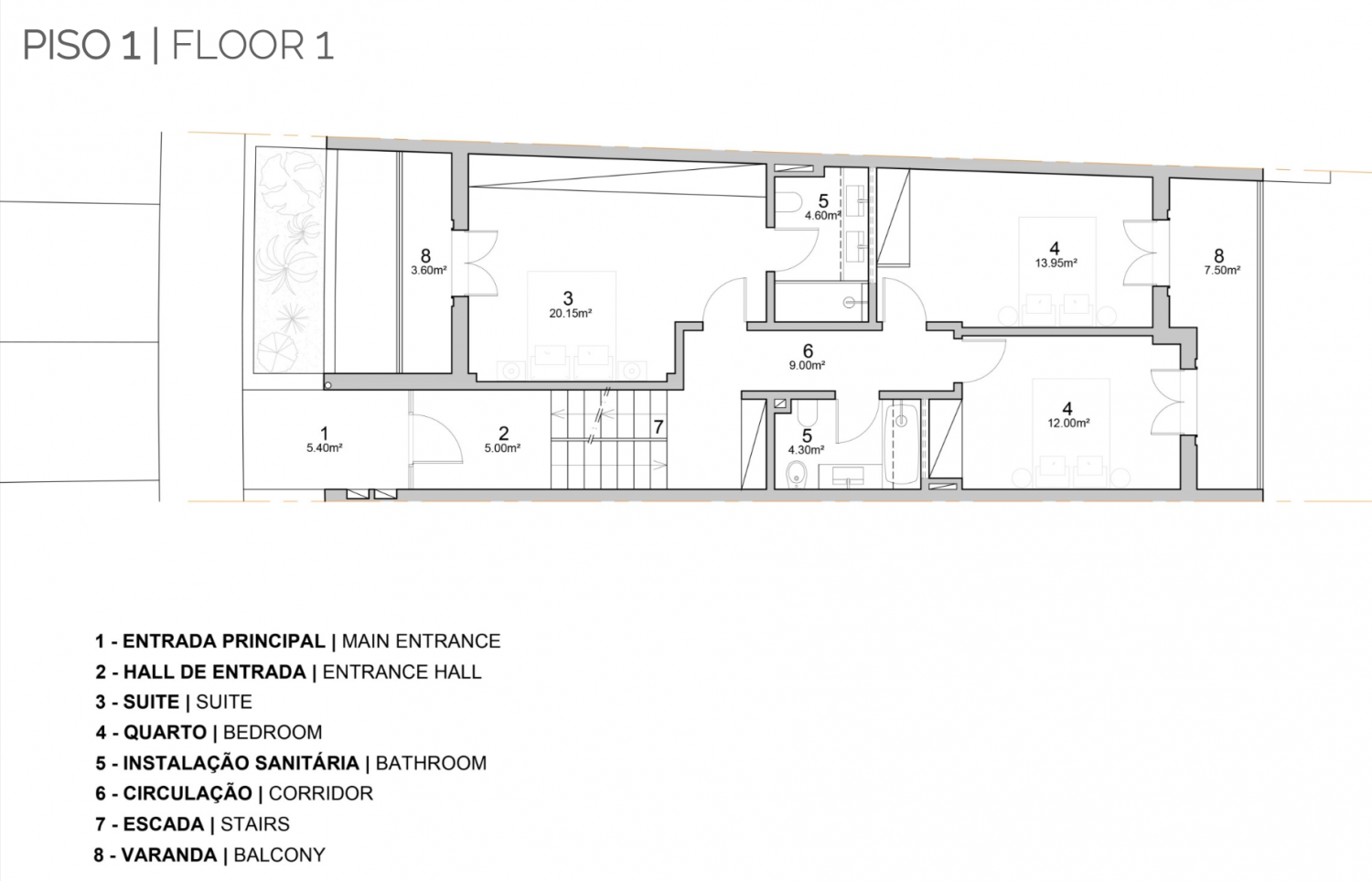
GeraisNº de Divisões :11
GeraisNº de Casas de Banho:4
GeraisLavandaria:Sim
GeraisSuite:Sim
Luz NaturalMuito Iluminado:Sim
Ar CondicionadoSplits:Sim
GaragemLugar Interior:Sim
GaragemLugar exterior:Sim
CozinhaPlaca:Sim
CozinhaForno:Sim
CozinhaExaustor:Sim
CozinhaMicro-ondas:Sim
CozinhaFrigorífico:Sim
CozinhaMáquina de lavar roupa:Sim

Este imóvel não tem áreas definidas.

Imóveis
Semelhantes

Moradia
Venda

820.000€

moradia T3+1 com 400m2 em Loule a 15 minutos ...

820.000€

Faro / Loulé / Loulé (São Clemente)


Ref: 31/2025

Ref: 31/2025

240 m2

3

4

Moradia
Venda

813.200€

Moradia T3 nova no coração da cidade de Loulé...

813.200€

Faro / Loulé / Loulé (São Clemente)


Ref: 22/2025

Ref: 22/2025

177.3 m2

3

3

Moradia
Venda

Preço sob consulta

Moradia T3+1 com 400m2 em Loule a 15 minutos ...

Preço sob consulta

Faro / Loulé / Loulé (São Sebastião)


Ref: 29/2025

Ref: 29/2025

240 m2

3

4